Osborne Residential Addition CAD layout – River City Enterprises project

Osborne Residential Addition

Osborne Residential Addition | Henrico, VA

Residential addition, design-build coordination, multi-trade construction

A renovated assembly space designed to support youth programming, recreation, and community engagement.

Completion Date

2026–2027

Overview

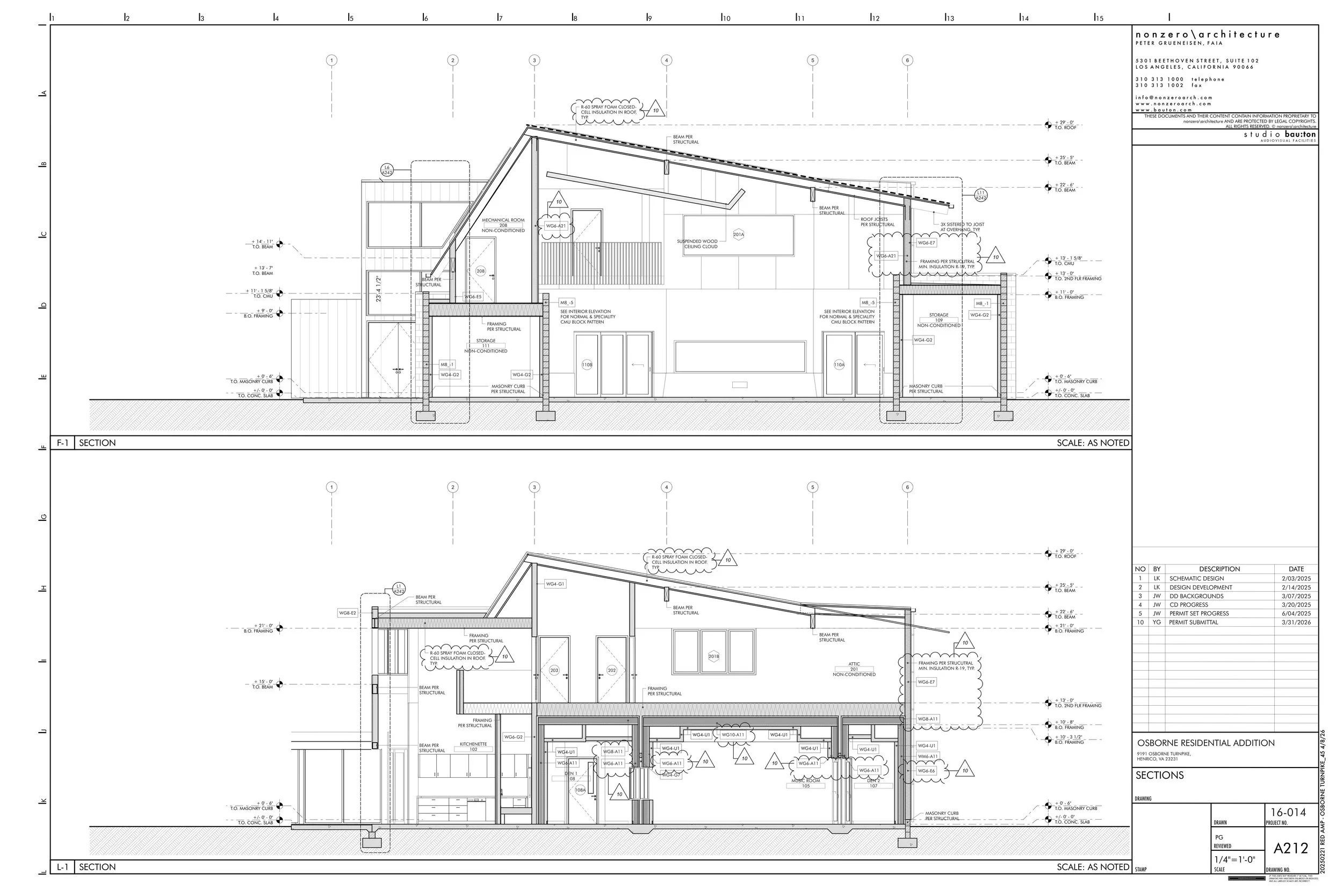
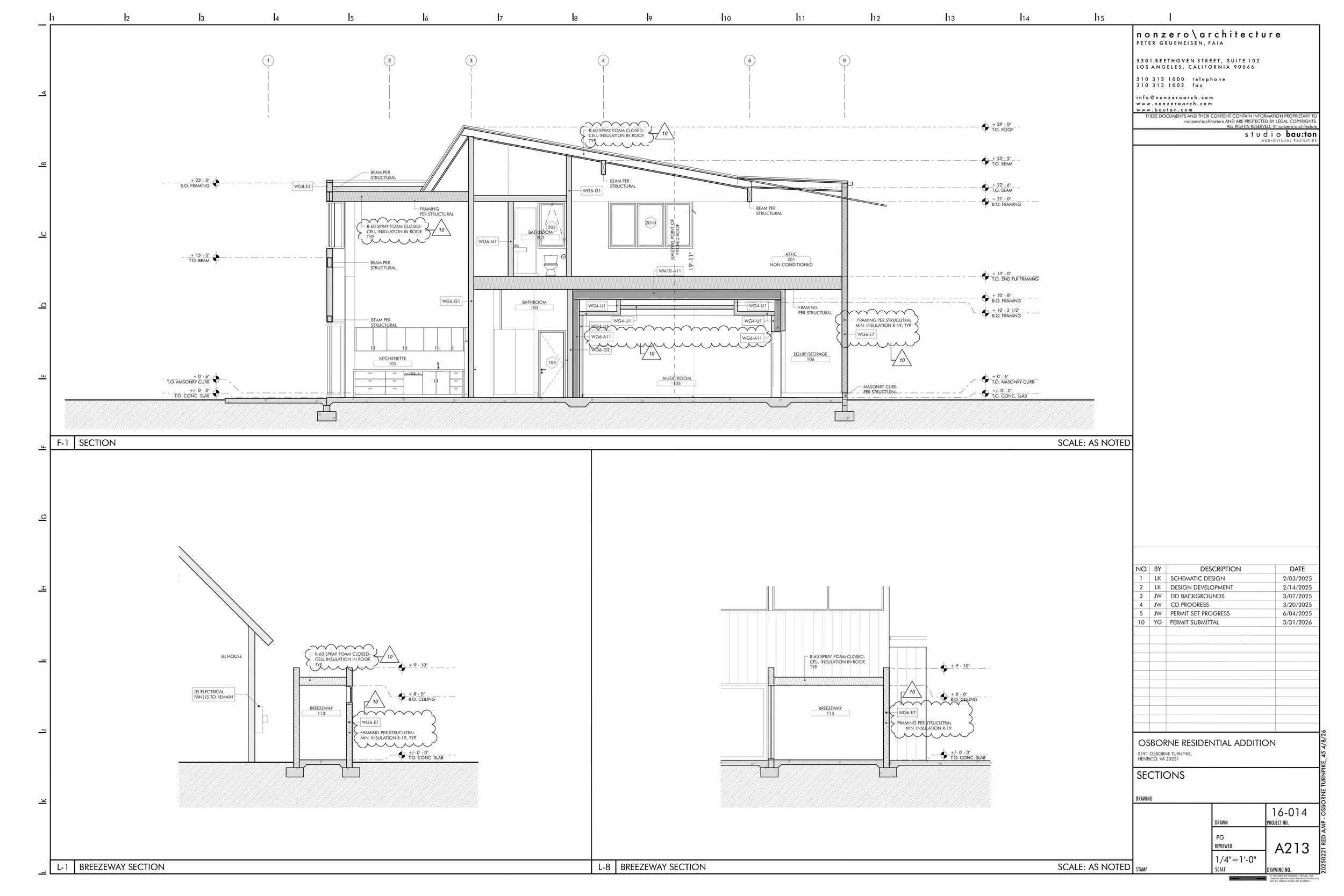
River City Enterprises completed a custom two-story addition to an existing single-family residence in Henrico County, VA. The project added approximately 5,470 square feet, along with a 761 SF breezeway connector, creating a cohesive expansion that integrates seamlessly with the existing structure.

Designed as a high-end accessory living and recording space, the addition includes specialized rooms, upgraded systems, and contemporary architectural elements that enhance both functionality and overall living experience.

Scope of Work

  • Construction of a 5,470 SF two-story residential addition

  • 761 SF breezeway connecting new addition to existing home

  • First floor buildout including sunroom, music room, dens, kitchenette, and support spaces

  • Second floor construction including bathroom, storage, balcony, and mechanical room

  • Installation of custom interior features:

    • Suspended wood ceiling cloud

    • Fabric wall treatments

    • Ceiling-mounted audio system

  • Full mechanical and electrical upgrades:

    • Daikin VRF multi-zone HVAC system

    • Fujitsu mini-split systems

    • 400A electrical service with dedicated panels and UPS backup

  • Exterior construction featuring CMU base and Hardie board siding to match existing residence

  • Installation of Class “A” cool roof membrane system

Impact

Expanded High-End Living and Creative Space
The addition provides a fully integrated living and recording environment, supporting both residential comfort and specialized use.

Seamless Integration with Existing Structure
The design and material selections ensure the new addition aligns visually and structurally with the existing home.

Advanced Building Systems and Performance
Upgraded HVAC, electrical infrastructure, and roofing systems enhance energy efficiency, reliability, and long-term performance.

Previous
Previous

Mechanicsville Christian Center Interior Renovation

Next
Next

VCU Arts & Innovation Academic Building